下通アーケードから東銀座通りor東寿通りへ徒歩1分以内!

事業用/BAR・ラウンジTM12ビル 9階 B号室(約17坪)
賃料(月額)
229,020円
最寄り交通機関
熊本都市バス「下通筋」 徒歩3分
所在地/物件名
熊本市中央区下通2-1-22
TM12ビル 9階 B号室(約17坪)
TM12ビル 9階 B号室(約17坪)
管理費・共益費等
38,170円/月
敷金/保証金/礼金
敷金 : 4ヶ月 保証金 : 無
礼金 : 無
礼金 : 無
専有面積(m2)
57.36m2
構造・階数/所属階数
鉄骨鉄筋コンクリート(一部鉄骨)造 地下1階付地上9階建/9階部分
築年数
1992年6月
駐車場
無
ペット飼育
入居可能予定日
相談
取引態様
仲介
設備
現状渡し(資料と現況が異なる場合、現況を優先致します。)
備考・コメント
3月末~4月中旬 内装等工事予定(エアコン、一部内装変更、ソファー入替)
広さ: 約17.35坪
飲用水:公営(熊本市)、電気:九州電力、ガス:都市ガス、排水:公共下水
ゴミ代6,171円(税込) 保証会社加入要(月額総賃料1ヶ月分)
仲介料:月額賃料の1ヶ月分(借主100%) 火災保険加入要
※定期借家契約(5年) 解約予告期間:3ヶ月前 5年未満解約時敷金不返還
※賃借部分の消防用設備等(火災報知器等)を法令に適合させる為の費用は借主様負担となります。
※製氷機・冷蔵庫をレンタルされる場合は、所定の設置料・初期整備料、月額費用が必要になります。
借主様自身での購入又はリースによる持込みは可能です。
※金額は全て税込表示です。
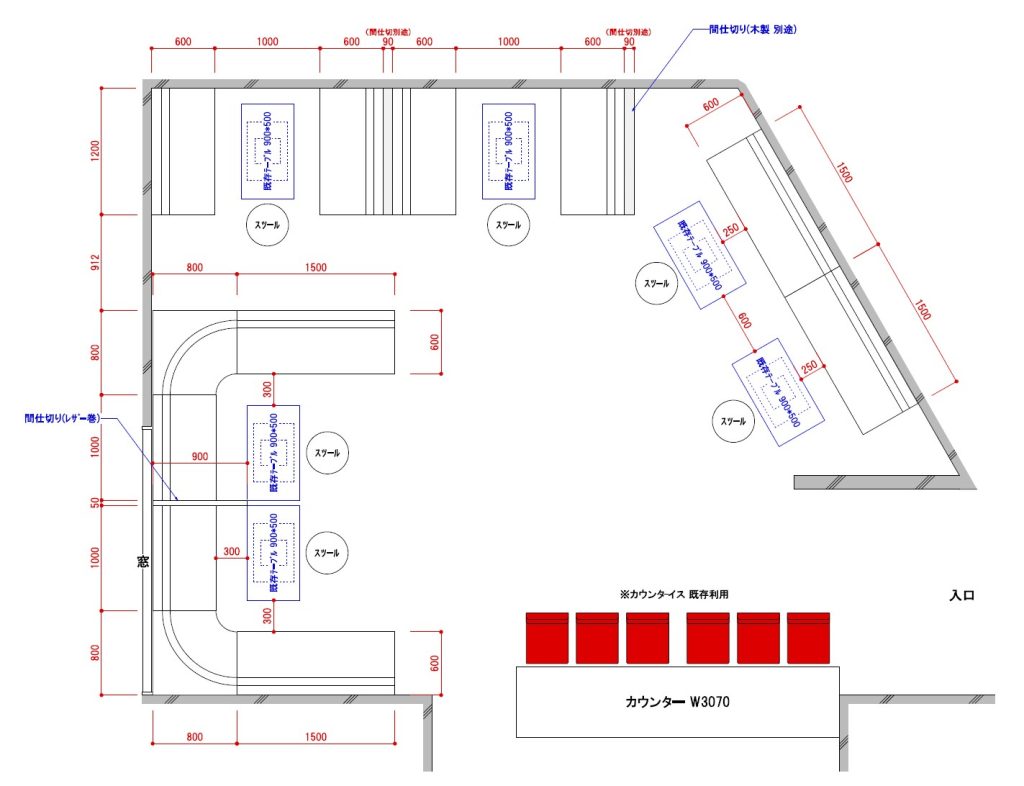
現地図
※現地につきましては現況優先となります。詳細はお気軽にお問い合せください。




